2025西安普汇中金国际中心-东北向|改善好房|楼盘介绍-周边配套

搜狐焦点安康站 2025-09-05 14:12:00
用手机看
扫描到手机,新闻随时看

扫一扫,用手机看文章
更加方便分享给朋友

西安普汇中金国际中心写字楼提供329㎡房源,含精装全配,物业费22元,售楼处电话029-88866618。

西安「普汇中金国际中心写字楼」

租售中心:029-88866618(营销中心)

租售地址:029-88866618(致电发送详情地址)

如需了解最新房源信息_在售房源价格_请拨打上方售楼部电话!

普汇中金国际中心 329㎡ 69元

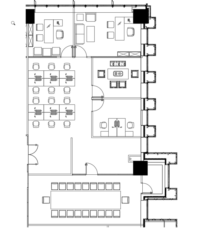
【 1403房 329平 5+1格局】 精装全配

位置:经开区文景路与凤城十路十字西北角

【PART01:房源信息】

物业费:22元(空调早8点-晚8点)

朝向:东北向

格局:5➕1

【PART02:楼宇信息】楼层:总高25层,地下两层,双银LOW-E中空玻璃幕墙,山水立面造型,区域商务地标

大堂:双层10米挑高大堂,高奢级艺术装修

电梯:7部芬兰通力高速电梯(六部客梯、一部货梯),面部识别+智能派梯系统

停车费:550元每月含管理费、临停3元/小时,电车充电桩+非机动车专用车位

大型会议室(可容纳50-80人,支持会议/培训布局)

商务茶室(日常商务会谈/品茗)

总裁会客室(会客沙发桌台,适合接待重要客户)

【普汇中金国际中心写字楼】租售中心TEL:029-88866618【售楼中心】了解最新优惠折扣价格——请拨打售楼处

声明:本文由入驻焦点开放平台的作者撰写,除焦点官方账号外,观点仅代表作者本人,不代表焦点立场。