西安金辉城君澜(售楼处线上)▁售楼处电话▁售楼处地址▁户型展示▁周边配套
扫描到手机,新闻随时看
扫一扫,用手机看文章
更加方便分享给朋友
西安「金辉城君澜河景别院」
售楼处:029-86117888(营销中心)
售楼部地址:029-86117888(致电发送详情地址)
销售状态: 在售
楼盘户型建面:177-249㎡
装修情况: 毛坯
交房时间: 2023年9月25日交付
开盘时间: 2021年12月15日已开盘
售楼处地址: 茶马大道与泾河大道交汇处向西
绿化率: 30%
容积率: 0.65
占地面积: 占地1046亩
建筑面积: 总建筑面积约255万㎡
总户数: 约16000户
车位比: 1:0.8
车位: 地上车位数1607 ; 地下车位数14478
物业公司: 金辉锦江物业
金辉产品系
[云系]
5C轻奢云生态理想改善人居
[大城系]
荟一城璀璨 纳世界生活
自造城市来来中心
定位“国际大城”醇魅功能区

优质医疗,时刻护佑家人健康
健康是感知美好的必须。项目周边西安交大附属泾河医院(签约落地)等优质医疗资源环绕在侧,时刻护航家人健康,大小麻烦无焦虑。
全生态艺术园林,城现乐活舒居
景观规划以多国艺术元素,打造全生态复合艺术园林,将雅致、自然、现代、时尚的气质融入每一个角落,成就现代都市 生活艺术之旅,全龄乐活社区,竞藏万般美好。


河岸盛境,安放自在闲情
亲水别院,人类向往的诗意居所。四时风景流转,拥有喧闹都市难能可贵的一方净土。绿树、碧水、鲜氧环绕,于此漫步垂钓,仰观云起云落,感天地之悠悠,享岁月之静好。
诗意庭院,独享自在天地
君澜低密院落,敬呈向往诗意栖居,一步一景,四季如画,田园生活自在想象,举步沐晨光,轻嗅草木芬芳,落霞映彩 窗,闻得鸟鸣蛙唱,阖家共乐,理想归依。
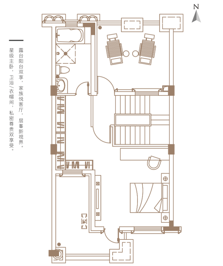
【金辉城君澜河景别院户型品鉴】
君澜A
建面约177㎡ 三室两厅四卫

(君澜A一层平面图)

(君澜A二层平面图)

实景图
【金辉城君澜河景别院】售楼处TEL:029-86117888【售楼中心】
了解最新优惠折扣价格——请拨打售楼处
声明:本文由入驻焦点开放平台的作者撰写,除焦点官方账号外,观点仅代表作者本人,不代表焦点立场。
