中铁建·西派天峯中心写字楼→建面→双地铁→大户型→楼位图
扫描到手机,新闻随时看
扫一扫,用手机看文章
更加方便分享给朋友
西安「中铁建·西派天峯中心写字楼」
租售中心:029-88866618(营销中心)
租售地址:029-88866618(致电发送详情地址)
如需了解最新房源信息_在售房源价格_请拨打上方售楼部电话!

项目名称:西派城TOD · 西派天峯中心
项目地址:大明宫-凤城二路与景云路交汇处十字西北角(地铁8/10号线井上村站A口)
项目规模:项目隶属中铁建·西派城TOD约500亩大城DK9地块,办公约24541.51㎡,238套。
项目层高:22层
产权年限:40年
交付标准:公区精装修 + 室内毛坯
在售面积:约85-1349㎡,TOD双地铁上盖,核心优质资产
八大核心价值归纳
1【双地铁上盖】地铁8/10号线出站即达,一站换乘3/4号线
2【3.8米层高】甲写标准,标准层高3.8米,3F层高4.2米
3【梁柱贴边】整层可打通,超高得房不浪费
4【空调自装】工作时长灵活,运营成本可控
5【方便停车】车位比约80㎡ : 1
6【独立上下水】室内预留上下水,会所、酒店、私厨功能灵活自定义
7【小面积分户】单户产证面积约85-128㎡,灵活组合、灵活融资、灵活变现
8【标杆物业】管理品质,实景可见(西派中心),楼宇价值有保障
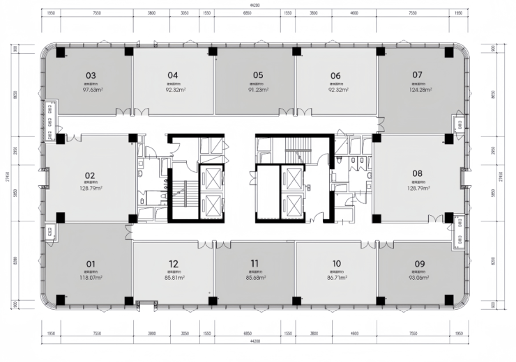
标准层平面示意

1个核芯 天赋贵脉
占位大明宫,商办新格局
区域潜力:随着大西安北进战略的愈演愈热,大明宫版块作为城市北拓的主动脉,政府重点改造,比肩曲江新区。西派天峯中心紧随大西安发展格局,雄踞曲江大明宫核芯位置,占位凤城二路与景云路黄金十字,其得天独厚的地理优势,势必带来更多精尖企业与商务资源的价值融合。
占位国家双中心:扼守“大西安北拓新中心”+“陆路发展国家级枢纽”;
模式革新破局:TOD超级大城激活区域商办新势能;
央企战略布局:中国铁建重仓打造核芯资产标杆;
商办格局:本项目商办组团以“甲写+商业”为基底,通过“TOD模式+超级大城”赋能,填补了大明宫版块高端写字楼的空白局面,投资价值潜力无限。

06服务·创新办公生态
惠企政务体系:引入楼宇政务服务站,切实打通服务企业的“最后一公里”,在助推企业高质量发展的同时,让惠企服务更有温度。
便企服务体系:区别传统写字楼,在保障安全舒适的前提下,增设便利办公体验。配套快递收发区、外卖留存区、泊车卸货区...让每一项细小的需求,都能得到应有的重视。
贴心运维体系:通过精准化服务和精细化管理,提供人性化、 差异化的服务体验,如配备医药箱、工具箱、针线包、烘鞋机等日常用品。想客户之所想,备客户之所需,贴心服务无微不至。
——西派天峯中心平面图赏析——
◎地标美学符号:流线型玻璃立面+精装星级大堂塑造商务封面
◎空间效能革命:6部蒂升高速电梯+3.8米层高+室内空间梁柱贴边
◎科技系统护航:24小时新风+人脸识别道闸+智能楼宇系统
◎人性细节标配:空调自装+单户独立上下水+单层独立男女分区公卫
——商办资产配置指南——
西派天峯中心可提供小面积到整层,以及多层、整栋的多元化空间定制,按需选择灵活投资。

【中铁建·西派天峯中心写字楼】售楼处TEL:029-88866618【售楼中心】
了解最新优惠折扣价格——请拨打售楼处
声明:本文由入驻焦点开放平台的作者撰写,除焦点官方账号外,观点仅代表作者本人,不代表焦点立场。
