创意时代中心商铺▁丰富业态▁临街现铺▁社区出入口▁配套服务
扫描到手机,新闻随时看
扫一扫,用手机看文章
更加方便分享给朋友
西安「
创意时代中心商铺
」
租售中心:029-88866690(咨询中心)
租售中心地址:029-88866690(致电发送详情地址)
在售户型图丨项目详情介绍丨剩余房源丨项目周边配套丨详细在线解答
租售中心 欢迎来电咨询!预约尊享优惠折扣 匠心钜制恭迎品鉴!
如需了解最新房源信息_在售房源价格_请拨打上方租售中心电话!

创意时代中心商铺项目笔记
46-119㎡ 高新一期核心位 成熟商圈消费强
准现铺 | 全业态 | 可餐饮 | 邻地铁 | 5.8米层高
项目情况:
稀缺优质资产 倾情实力巨献
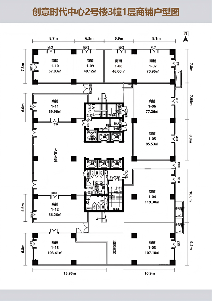
【商铺面积】46-119㎡
【商铺套数】:11套
【层 高】:5.8米,买一层得两层
【消费人群】:约20万流动消费群体
【餐饮】: 自接管道 可餐饮
【物业费】:22.5元/㎡·月
【交房时间】:2026年6月
【租金情况】:260~450元/平
【水电】:商水商电
【付款方式】:一次性
【公摊】:6%
产品信息:
纯一层
☑价格区间:3.3-5.3万元/㎡
☑主力面积:50-70㎡
☑主力总价:200~350万
周边商铺租金情况
启迪新商业:260-550元/㎡/月
该商业为开放式商业街类型,已全面开放营业,暂未开售,聚集众多年轻潮流的商业形态,消费人群以周边办公及居住人群为主。
人才大厦:220-500元/㎡/月
该商业目前已经成熟,位于高新医院对面,拥有固定消费人群,产品规划商铺+酒店式公寓,周边商业氛围已经形成。
方圆荟:200-500元/㎡/月
该商业类型为商业综合体,邀约品牌商家入驻,体量较小,满足周边居住人群的消费需求,经营时间较长,但对于年轻的消费力缺少吸引点。
周边配套
交通:地铁站有3号线和8号线延平门换乘站,以及6号线甘家寨站,5号线金光门站;公交线路有218、260、262、107、400、14等46条。
学校:高新第二学校、高新第一学校、高新区第四学校、高新区第十三小学、高新区第二十八小学,共计约2.5万师生。
医疗:高新医院,一年累计接待治疗患者达500万,后期会给我们项目带来每日流动消费人群。

项目卖点:
①高新一期核心位置,紧邻科技二路
②可餐饮,全业态,经营广泛
③实景准现铺,交房无风险
④5.8米层高,买一层得两层
⑤软件园环伺,超20万流动消费群体
⑥区域稀缺优质商业资产
⑦小面积,总价低,投资风险小
⑧方正户型,无梁无柱,空间灵活性强
稀缺鎏金旺铺:仅11席,错过再无
投资无忧:准现铺租售同步

【创意时代中心商铺】租售中心TEL:029-88866690【租售中心】
了解最新优惠折扣价格——请拨打服务热线
声明:本文由入驻焦点开放平台的作者撰写,除焦点官方账号外,观点仅代表作者本人,不代表焦点立场。
