(商铺在售)招商雲蘭商铺▁交通配▁现铺▁业态、层高▁开发商推广直销
扫描到手机,新闻随时看
扫一扫,用手机看文章
更加方便分享给朋友
西安「招商雲蘭商铺」
售楼处:029-88866690(营销中心)
售楼部地址:029-88866690(致电发送详情地址)
【百年央企,世界500强】
招商局集团创办于1872年底,迄今已有151年历史,是世界500强,孵化并培育出招商银行、平安保险、中集集团、招商港口等知名企业。
【交付力保障】
对比其余开发商平均交付时长更短,买房更放心,交付无忧!

【CID瞳心内环 对望深圳前海特区】
高新CID以未来之瞳为中心构筑起十字发展轴,重点打造企业总部、国际医疗、金融文化、遗址公园等9大组团,是多元化中心高地。
【城市核心,一步之遥】
项目距未来之瞳直线距离约700米
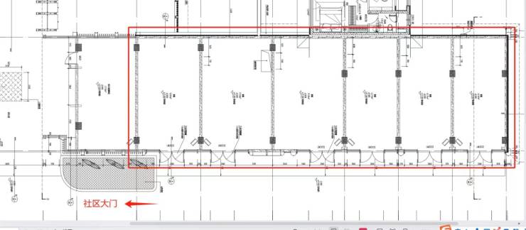
【CID最纯粹社区商业】
1.临街铺源:仅有6套。
2.在售面积:43.84㎡-58.45㎡
3.商铺层高:约6米
4.餐饮条件:有烟道可餐饮
5.预留区域:商铺门口距红线约13米。
6.拿地时间:2023.7.6
7.交房时间:2025.12.30(预计提前6个月交付)
优势:
1.项目为高品质住宅社区,商业配比低。
2.预留烟道,全业态,可餐饮。
3.层高6米可分割两层,扩展使用面积。
4.全落地通体玻璃幕墙,采光好、高端大气。
5.超大门头,超大展示广告区,昭示性强。
6.门口预留较大区域,可生意外摆。
【招商雲蘭商铺】售楼处TEL:029-88866690【售楼中心】
了解最新优惠折扣价格——请拨打售楼处
声明:本文由入驻焦点开放平台的作者撰写,除焦点官方账号外,观点仅代表作者本人,不代表焦点立场。
