越秀铁建西派天悦商铺_五证齐全_租金_优惠政策_区位图
扫描到手机,新闻随时看
扫一扫,用手机看文章
更加方便分享给朋友
西安「越秀铁建西派天悦商铺」
租售中心:029-88866690(营销中心)
租售地址:029-88866690(致电发送详情地址)
在售户型图丨项目详情介绍丨剩余房源丨项目周边配套丨详细在线解答
售楼中心_欢迎来电咨询!预约尊享优惠折扣_匠心钜制恭迎品鉴!
如需了解最新房源信息_在售房源价格_请拨打上方售楼部电话!
项目地址:位于成业大道以南、创智路以东、长康路以北、星虹二路以西
一.项目卖点:
西安成为继北京、上海、粤港澳大湾区之后的中国第四个“双中心”城市,丝路科学城成为全国第一个、且唯一的“双中心”核心承载区,目标定位打造国际具有影响力的科技创新高地,科学交流中心和秦创源创新驱动平台,也是重点的住房新增区及人口导入区;
高新CID作为丝路科学城核心战略腹地及高新三次创业发展中心,以未来之瞳(在建中)为城市名片,聚集高端产业、高端配套、高端人才、高端居住环境,擎领大西安国际化都市新封面,打造集办公、教育、会展、文化等功能配套为一体的宜居宜业之城。
二.开发商及物业:
开发商:西安越隽恒铁房地产开发有限公司
物业:越秀服务(一级资质)
商铺面积:22-82㎡
水电费:参考价电费0.8元/度 水费6元/吨
商铺层高:6米
交房时间:2025-12-31
产权年限:40年
周边租金情况:180-260元/平米
业态情况:部分可餐饮
公摊:15#公摊约4.4%,16#公摊约2.9%



四维立体交通,地铁6号线(已开通)/12号线(规划中)/15号线(在建)/16号线(在建)+4条云轨(在建中)+1条云巴(规划中)+1座高铁站(规划中)
5公里范围内,规划建设29所学校,其中15所已开学【高新一幼直管第二十二幼儿园(已开学)、高新第三十一小(已开学)、高新第十一初级中学(已开学)等】
5公里范围内6所医院,项目西侧紧邻西安国际医学中心医院 6大景观资源环绕,未来之瞳约450亩湿地公园(规划中)、约340亩大仁遗址公园等
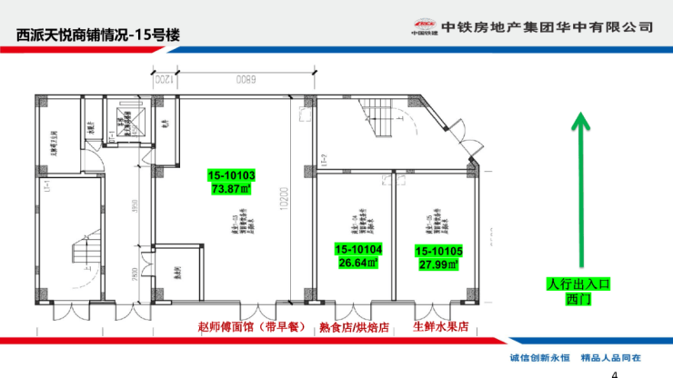
五.在售产品户型图:


六.项目卖点:
1.最强品牌:越秀(TOP12)铁建(TOP15)国央企联合,综合实力全区域最强。
2.最好地段:高新CID曈西板块,区域内最纯粹的富人聚集区。
3.最贵立面:大面铝板加流线型外立面,造价最高,颜值最美。
4.四条地铁线路连通高铁南站,高新云轨横穿整个未来之瞳,交通便利。
5.层高6米,可以餐饮,满足社区各类丰富业态需要。
6.纯一层,小面积,低投资,高回报。
7.小区出入口旁,人流有保障。
8.小区仅十间商铺,商业配比低,同行业竞争力小,业态重复率低。
9.租户稳定,中途断租的可能性小。
10.抗风险能力强和升值空间大。
【越秀铁建西派天悦商铺】租售中心TEL:029-88866690【售楼中心】了解最新优惠折扣价格——请拨打售楼处
声明:本文由入驻焦点开放平台的作者撰写,除焦点官方账号外,观点仅代表作者本人,不代表焦点立场。
