(售楼中心)金辉城君澜河景别院▁售楼处电话▁卖点分析▁新品▁物业公司
扫描到手机,新闻随时看
扫一扫,用手机看文章
更加方便分享给朋友
西安「金辉城君澜河景别院」
售楼处:029-86117888(营销中心)
售楼部地址:029-86117888(致电发送详情地址)
在售户型图丨项目详情介绍丨剩余房源丨项目周边配套丨详细在线解答
基本信息
楼盘名称:金辉城 在售
楼盘特点:现房 一房一价 客餐厅相连 私密性好 低总价
参考价格:8200元/m²
物业类型:住宅
开发商:陕西枫泓房地产开发有限公司
区域位置:三环外- 西咸新区- 泾河新城
楼盘地址:茶马大道与泾河大道交汇处向西约3公里
最新开盘:2021年12月15日
交房时间:2023年9月25日
售楼处地址展厅地址:文景路与凤城八路向西100米

【品牌实力】
25载金辉 质感生活美学引领者
金辉集团,中国房地产开发企业综合实力36强,中国房地产开发企业综合发展10强。深耕全国33座核心城市,臻心服务30余万业主,为约10万户家庭筑造幸福生活。

【产品价值】
西安北心,城市热土之上
在新一轮的发展中,城市提速更迭,续写一个又一个流动的城市史诗。项目位居西咸新区五大组团之一,大西安北跨战略核心区,2021年一季度区域生产总值(GDP)同比增长26.9%,位列西咸新区第一(数据来源:西咸新区泾河新城)劳动密集型+人才密集型等众多优质企业聚焦,大西安腾飞热土。
文旅高地,执掌一城繁华所向
国家地理坐标经纬度起点和基准点--大地原点,中国第一高砖塔--崇文塔;国家4A级景区--约2200亩茯茶镇,恒大童世界、乐华欢乐世界等大型主题乐园环伺
文旅资源加持,繁华所向,丰盈日常生活。


一线滨水,直观泾河景致
区域难得河景资源叠院用地,君澜直观泾河一线景致,17公里大河宏阔空间,不止容载万物气度,更容纳宽天阔院所有想象,对水岸资源的占有,天生稀贵。宽境尺度,进阶人居理想
一席宽奢之境,承载从容生活,郎阔厅堂,谈笑风生的会客场;巨幕阳台,生活倾心悦其境;上下三境,和而不扰,志趣场、社交场、休憩场有序分层,生活不被空间所限,尽享舒适高雅领地。
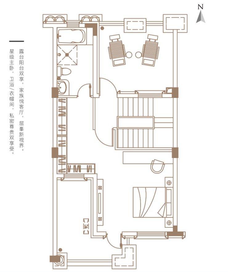
【金辉城君澜河景别院户型品鉴】
君澜A
建面约177㎡ 三室两厅四卫

(君澜A一层平面图)

(君澜A二层平面图)

实景图
【金辉城君澜河景别院】售楼处TEL:029-86117888【售楼中心】
了解最新优惠折扣价格——请拨打售楼处
声明:本文由入驻焦点开放平台的作者撰写,除焦点官方账号外,观点仅代表作者本人,不代表焦点立场。
