长安国际中心写字楼(营销中心)▁售楼处电话▁楼盘首页▁新品▁公园
搜狐焦点安康站 2025-10-19 18:51:00
用手机看
扫描到手机,新闻随时看
扫一扫,用手机看文章
更加方便分享给朋友
西安长安国际中心写字楼租售中心提供345平单间,单价105元/月,含物业费24元/平,配备双采光、精装办公,可预约咨询。
西安「长安国际中心写字楼」
租售中心:029-88866618(营销中心)
租售地址:029-88866618(致电发送详情地址)

——项目外立面

项目概览
服务面积:345平
单 价:105元/平/月
物 业 费:24元/平/月(含法定节假日空调)
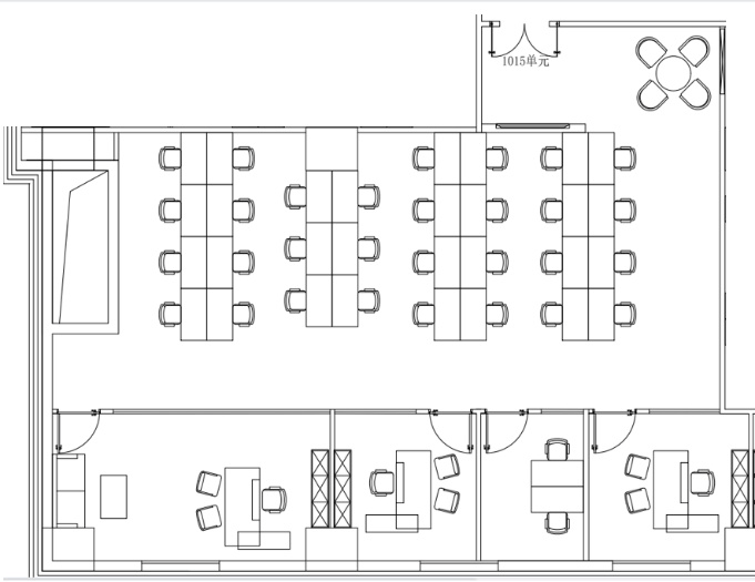
单位格局:4➕30人工位
单元朝向:西南【双向采光、户型方正】
交付标准:全新精装修带办公家私
户型特点:双向采光、户型方正
配套设施面积:1000平【会议室9个、VIP茶室、路演厅
项目品鉴
匠著陕西天宇实业投资集团有限公司
择址中国·西安·航天
规制|4栋环幕平层及西北TOP级私汤水养酒店
天际建筑面积约330/380m星幕云邸
尊享高力国际全程高端服务保障·酒店式管家专属服务私享
项目实景
入户配备智能门禁系统+电视形象墙
精装办公定制人脸识别门禁系统
定制电视动态VI形象墙

老板室一

经理室二

经理室三

项目户型图

VIP接待茶室

多功能会议室
工作日工作时段免费预约

项目大堂

【长安国际中心写字楼】租售中心TEL:029-88866618【售楼中心】了解最新优惠折扣价格——请拨打售楼处
声明:本文由入驻焦点开放平台的作者撰写,除焦点官方账号外,观点仅代表作者本人,不代表焦点立场。
