富力·开远城商铺【商铺】▁售楼处电话▁建面▁租售中心▁租售电话

搜狐焦点安康站 2025-10-08 13:00:00
用手机看
扫描到手机,新闻随时看

扫一扫,用手机看文章
更加方便分享给朋友

西安富力·开远城商铺项目推出,位于二环城央,临街钻铺,商住比低,投资收益稳定,区域价值突出。

西安「富力·开远城商铺」

租售中心:029-88866690(营销中心)

租售地址:029-88866690(致电发送详情地址)

在售户型图丨项目详情介绍丨剩余房源丨项目周边配套丨详细在线解答

售楼中心_欢迎来电咨询!预约尊享优惠折扣_匠心钜制恭迎品鉴!

如需了解最新房源信息_在售房源价格_请拨打上方售楼部电话!

百万商业金十字 建面约18-71㎡临街钻铺 限量发售二环城央 富力金街

【项目地址】莲湖区丰镐西路与团结南路十字向西50米

【开 发 商】西安坊城置业有限公司

【占地面积】约660亩

【建筑面积】逾300万㎡

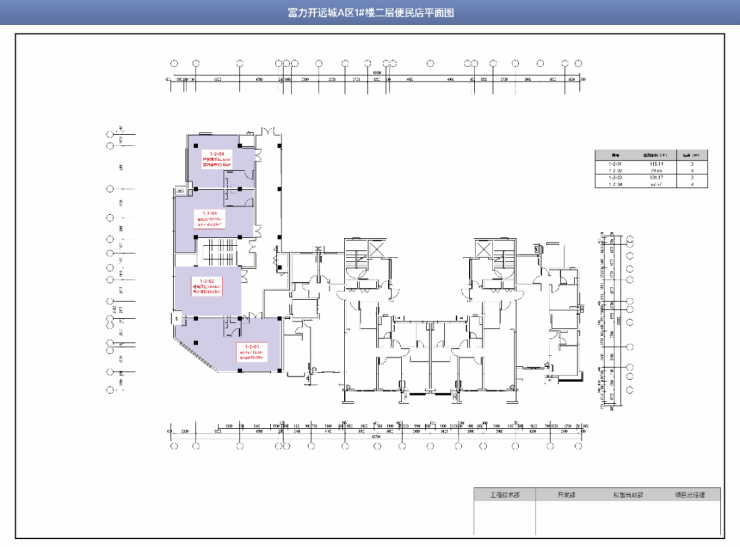
【即将推售商铺】 1、住宅裙楼: DK1:1#、2#、9#楼一层;

【楼层层高】一层6m

【面积区间】约18-71㎡临街钻铺

金律二:城市腹地 · 聚合升级

盘踞二环主城 链接城南高新

项目占据主城板块最后一片热土,区域价值突出。由团结南路直抵高新腹地,辐射高新繁华商业,城市发展红利和高端人居生活一举兼得,形成资源共享的格局,项目板块也将成为继曲江之后的又一热点板块

金律七: 掘金旺铺 · 钱景无限

①超低商住比:约1.7-3.6%,远低于一般社区5%-11%的商住比,全城少有的一铺享万人消费力

②首层6M层高:一层投入双倍收入,可改造二层或利用层高提升商铺形象,满足经营的自由创想

③合理尺寸:约70%左右的商铺面积在40-80㎡之间,面宽3.5m以上,户型方正,展示场景丰富

④多业态设计:90%可做餐饮,适配多元业态,灵活投用

⑤最后1KM的生意经:约18-71㎡临街旺铺,昭示性强,保障人流导入,打造24小时便利生活圈

金律八:财富升级 · 商机无限

土门板块与高新一期周边商业状态成熟,租金态势良好,投资收益稳定。富力·开远城凭借优越的地理位置,周边2-3W的住宅均价,打造高消费稀缺钻铺,让投资经营更轻松,资产升值更稳当

即将推售商铺落位示意(总平图)

DK1商铺资料

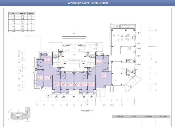
【面积】约18-71㎡

【开间】约3-7.5m

【进深】约4.2-12m

【层高】一层6m

【公摊】约4.1%

【业态】预留水、电、燃气、烟道、排污等各项设施,适配多元业态,灵活投用

【材质】真石漆外墙

【地块四至】北邻DK1双子塔公寓,南邻DK2社区,西侧为莲湖区卫生服务中心及安置小区,覆盖2万+常住居民,东侧对望DK4商业Shopping Mall、写字楼集群,吸附商业中心、高端办公区约10万多层级消费人群,超强的中心虹吸原理,未来庞大人流赋能,钱景无限

DK1#、2#、9#商铺平面图

百万商业金十字 百万人潮养一铺 二环城央 高新门户 建面约18-71㎡临街钻铺 富力·开远城项目商铺感谢您的关注 财富时光 一铺迎鉴

【富力·开远城商铺】租售中心TEL:029-88866690【售楼中心】了解最新优惠折扣价格——请拨打售楼处

声明:本文由入驻焦点开放平台的作者撰写,除焦点官方账号外,观点仅代表作者本人,不代表焦点立场。