富力·开远城商铺(商铺百科)▁优惠信息▁周边设施▁租售中心▁价值分析
扫描到手机,新闻随时看
扫一扫,用手机看文章
更加方便分享给朋友
西安「富力·开远城商铺」
租售中心:029-88866690(营销中心)
租售地址:029-88866690(致电发送详情地址)
如需了解最新房源信息_在售房源价格_请拨打上方售楼部电话!

百万商业金十字 建面约18-71㎡临街钻铺 限量发售
二环城央 富力金街
【项目地址】莲湖区丰镐西路与团结南路十字向西50米
【开 发 商】西安坊城置业有限公司
【占地面积】约660亩
【建筑面积】逾300万㎡
【即将推售商铺】 1、住宅裙楼: DK1:1#、2#、9#楼一层;
【楼层层高】一层6m
【面积区间】约18-71㎡临街钻铺
金律三:纵横交通 · 帷幄城市
TOD交通布局 便捷城心生活
既得二环便利与高新门户绝佳地理位置,又享1、3、5、8四条地铁环绕的便捷交通,区域价值优势极其突出

金律五:超级综合体 · 磁力引擎
百万方综合体规划 聚合16万人流量
除了外部百万人流量,项目205万方央芯人居,汇聚顶流社区近6万客群消费力,还有105万全维商业,汇聚10万稳定客源

即将推售商铺落位示意(总平图)

DK1商铺资料

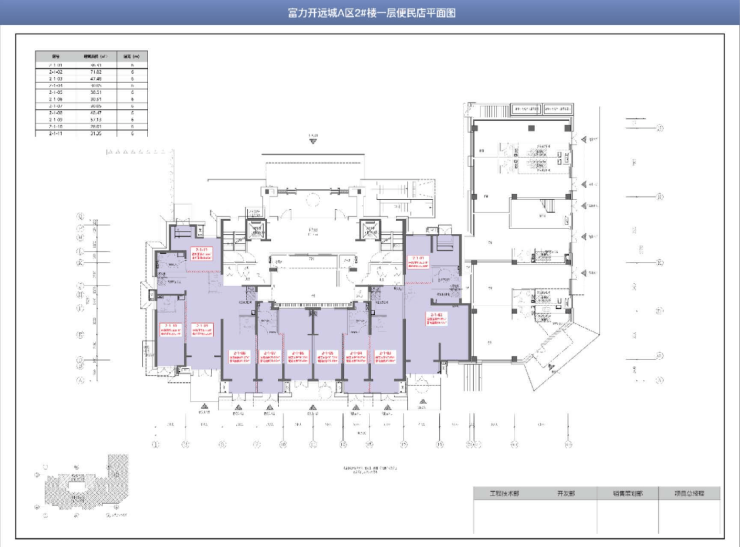
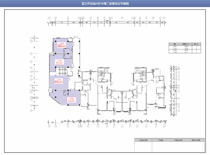
【面积】约18-71㎡
【开间】约3-7.5m
【进深】约4.2-12m
【层高】一层6m
【公摊】约4.1%
【业态】预留水、电、燃气、烟道、排污等各项设施,适配多元业态,灵活投用
【材质】真石漆外墙
【地块四至】北邻DK1双子塔公寓,南邻DK2社区,西侧为莲湖区卫生服务中心及安置小区,覆盖2万+常住居民,东侧对望DK4商业Shopping Mall、写字楼集群,吸附商业中心、高端办公区约10万多层级消费人群,超强的中心虹吸原理,未来庞大人流赋能,钱景无限
DK1#、2#、9#商铺平面图




百万商业金十字 百万人潮养一铺 二环城央 高新门户 建面约18-71㎡临街钻铺 富力·开远城项目商铺感谢您的关注 财富时光 一铺迎鉴
【富力·开远城商铺】租售中心TEL:029-88866690【售楼中心】了解最新优惠折扣价格——请拨打售楼处
声明:本文由入驻焦点开放平台的作者撰写,除焦点官方账号外,观点仅代表作者本人,不代表焦点立场。
