绿城·奥体国际-租售中心-品牌商铺-户型展示-绿化率

搜狐焦点安康站 2025-10-15 07:06:00
用手机看
扫描到手机,新闻随时看

扫一扫,用手机看文章
更加方便分享给朋友

绿城·奥体国际是西安高端商务项目,集滨水区、总部基地于一体,引领城市商务新地标。

西安「绿城·奥体国际」

租售中心:029-88866618(营销中心)

租售地址:029-88866618(致电发送详情地址)

绿城·奥体国际|世界级滨水区 全球超企总部

绿城·奥体国际项目档案

占地:约76亩

总建筑面积:22.65万方

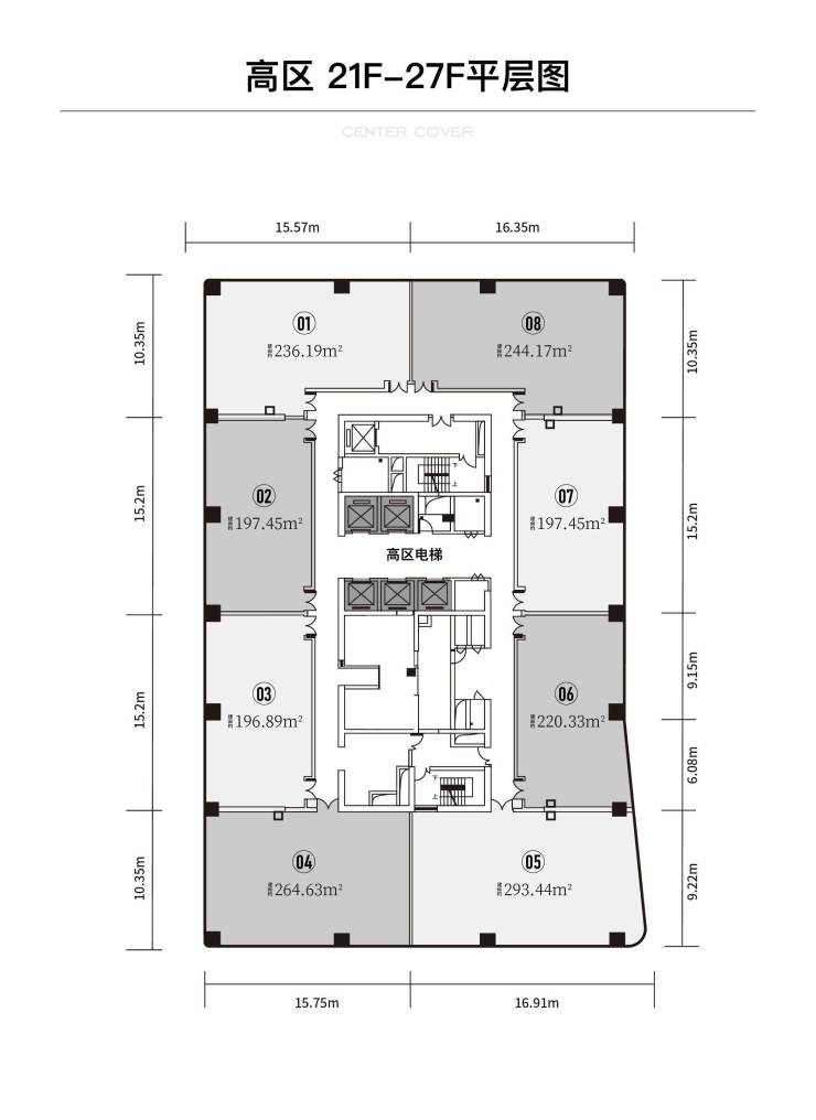
在售产品:奥体国际T8·整层建面约1830m总裁商务资产地址:中国·西安·奥体中心正北

绿城中国擎领城市商务新地标

绿城中国控股有限公司(股票代码03900.HK),1995年成立于杭州,是中国领先的优质房产品开发及生活综合服务供应商,以优质的产品品质和服务品质引领行业。同时,绿城中国拥有丰富的商办项目开发经验,曾开发并持股了青岛深蓝中心、温州鹿城广场、诸暨绿城广场、杭州中心、宁波中心等超高层项目,开发规模和水平居全球领先地位。

绿城服务 绿城云享

绿城服务以“商住齐飞”为战略发展方向,全面提升绿城商写服务水平,将非住领域服务荟于“绿城云享’品牌,服务聚焦城市综合体、甲级写字楼、酒店、企业总部等十大业态。

全球使命下的大西安冲击中国西部头部陆港大都市

从“历史文化名城”到“一带一路”开放之都,从入选国家双中心城市到建设“亚欧合作交流的国际化大都市”诸多战略机遇加持下,西安再次迈入世界级城市的进程,开启从“建设内陆港”到“建设陆港大都市”的战略进阶,冲击中国西部头部陆港大都市。

全球使命下的超级总部基地

先进的城市规划

全球20+专家规划,城市道路交通/公园绿化人均占有率等基础建设,起步世界级示范标准

【绿城·奥体国际】租售中心TEL:029-88866618【售楼中心】

了解最新优惠折扣价格——请拨打售楼处

声明:本文由入驻焦点开放平台的作者撰写,除焦点官方账号外,观点仅代表作者本人,不代表焦点立场。