(售楼中心)首创中心→知名开发商→办公首选→最新动态→在售户型

搜狐焦点安康站 2025-10-09 06:45:00
用手机看
扫描到手机,新闻随时看

扫一扫,用手机看文章
更加方便分享给朋友

西安首创中心写字楼位于经开区,集商办、酒店、写字楼于一体,交通便利,配套设施完善。

西安「首创中心写字楼」

租售中心:029-88866618 (营销中心)

售楼部地址:029-88866618 (致电发送详情地址)

在售户型图丨项目详情介绍丨剩余房源丨项目周边配套丨详细在线解答

售楼中心_欢迎来电咨询!预约尊享优惠折扣_匠心钜制恭迎品鉴!

如需了解最新房源信息_在售房源价格_请拨打上方售楼部电话!电话!

基本信息

楼盘名称:首创中心写字楼

建筑类型:高层,超高层

规划户数:2129户

楼层状况:61#共33层;62#/63#共19层;6T26户,64#共19层,6T33户;65#共25层

车位数:2488 (地上:249 个 地下:2049个)

楼盘特点:现房 经开区 地铁沿线 社区底商 远郊新城

参考价格:15000元/m²

物业类型:商办

开发商:西安首创新开置业有限公司

区域位置:二至三环- 经济开发区- 文景路沿线

楼盘地址:凤城十二路与文景路十字东北角(首创漫香郡北侧)

一、项目简介

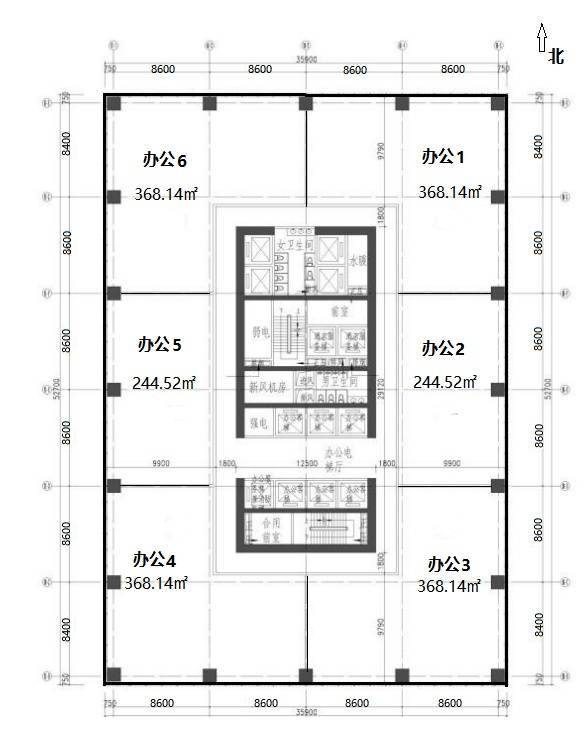
1、项目位于西安市经开区北三环与凤城北路交汇处西南角。总占地82亩,总建筑面积29万㎡,容积率3.8。由首创新开置业有限公司开发,集五星级酒店、150米摩天地标、5A甲级写字楼、IMAX国际影城、主题商业、云端LOFT为一体的枢纽都会地标。

2、项目在售产品 61#整栋(5A甲写+酒店)

酒店配套:

一楼、层高6米,宴会厅入口、前厅、 办公大堂高(10.4m)酒店门厅、 宴会厅(560人)

二楼、行政区高4.4米,行政办 公、物业用房,大型宴会厅;

三楼、层高6米,特色餐厅及厨房; 4小2大多功能会议室配套用房;

四楼、层高(7.6-2米管道),休闲 娱乐、健身房、瑜伽馆等功能

二、项目区位

项目位于经开区的中心区,距离西安北客站仅3分钟,位于西安北站商圈核心位置。该区域目前无论是从交通条件、商业发展、产业规划、商务办公、医疗教育、居住环境等各方面来看,都是非常成熟完善的。区位图

区位点评:项目紧邻北三环及绕城高速,处于主城核心地段,该区域目前发展较为成熟;紧邻城市主干道,车流量较大。

三、交通配套

首创中心位于三环内,距离西安北客站1.2公里,片区内规划及在建多条地铁,公共交通及道路情况良好。

高铁:西安北客站,亚洲最大高铁站,西北规模最大、最重要的铁路枢纽,1小时省内生活圈,3小时抵达周边城市群,6小时长三角、京津冀,9小时珠三角,全国各大中城市快速往来畅行无忧。

高速:临近三环、绕城高速、机场高速(15分钟即达机场)、包茂高速,自驾出行急速抵达周边城市。

地铁:2号线(北苑站,100米)、4号线(元朔路站,1.3公里)、机场城际线、13号线、14号线,四线环伺贯通市内各大区域。

公交:714、108、263、264、265、266、108等公交经过项目地,便捷出行。

交通点评:项目位于北客站前核心位置,加之多条地铁、公交换乘,澎湃人潮刺激资金流、商务流、商业流形成区域中心。占据高铁、地铁、飞机、自驾、公交的五维立体交通枢纽,交通资源优势明显。

四、配套资源

1、商业:内部规划2栋商业街区、超高层酒店、电影院;外部紧邻首创禧悦里1公里,熙地港4公里、大融城4公里、中登广场5公里、世纪金花5公里等多高端商场云集。

2、产业:周边草滩工业园、雨润全球农副产品西安采购中心、荣华·九如城养老产业园、西安保税物流区、中国北车永济电机电气产业园、北站智能物流园等已然成型,生活需求待满足。

3、商务:5公里范围内,一方中港国际、富尔顿财富中心、文景广场、圣朗国际、普汇中金国际、西北国金中心等近20栋品质写字楼聚集。

4、教育:3公里范围内,南党小学、经开五小、文景小学、西安经发学校、文景中学、西航二中、西安市第五十八中、长安大学、陕西科技大学等幼小初高大各阶段学校遍布周边。

5、医院:距离西安市中医院2.1公里,西航医院1.6公里,经开医院6公里,另有西安市儿童医院,西安市红会医院北院区,五所医院为周边市民保驾护航。

6、公园:南有800亩城市运动公园,距离约1.7公里;北有160亩文景山公园,距离2公里,双公园涵养绿色健康环境。

7、公园:南有800亩城市运动公园,距离约1.7公里;北有160亩文景山公园,距离2公里,双公园涵养绿色健康环境。

五、项目证件

【首创中心写字楼】租售中心TEL:029-88866618 【售楼中心】

了解最新优惠折扣价格——请拨打售楼处

声明:本文由入驻焦点开放平台的作者撰写,除焦点官方账号外,观点仅代表作者本人,不代表焦点立场。