租售中心,招商雲蘭商铺▁样板间▁现铺▁品牌开发商▁自持物业
扫描到手机,新闻随时看
扫一扫,用手机看文章
更加方便分享给朋友
西安「招商雲蘭商铺」
售楼处:029-88866690(营销中心)
售楼部地址:029-88866690(致电发送详情地址)
在售户型图丨项目详情介绍丨剩余房源丨项目周边配套丨详细在线解答
【百年央企,世界500强】
招商局集团创办于1872年底,迄今已有151年历史,是世界500强,孵化并培育出招商银行、平安保险、中集集团、招商港口等知名企业。
【交付力保障】
对比其余开发商平均交付时长更短,买房更放心,交付无忧!

【CID瞳心内环 对望深圳前海特区】
高新CID以未来之瞳为中心构筑起十字发展轴,重点打造企业总部、国际医疗、金融文化、遗址公园等9大组团,是多元化中心高地。
【城市核心,一步之遥】
项目距未来之瞳直线距离约700米
【CID最纯粹社区商业】
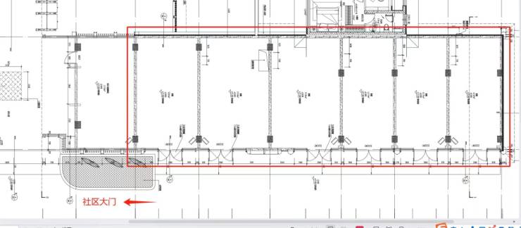
1.临街铺源:仅有6套。
2.在售面积:43.84㎡-58.45㎡
3.商铺层高:约6米
4.餐饮条件:有烟道可餐饮
5.预留区域:商铺门口距红线约13米。
6.拿地时间:2023.7.6
7.交房时间:2025.12.30(预计提前6个月交付)
优势:
1.项目为高品质住宅社区,商业配比低。
2.预留烟道,全业态,可餐饮。
3.层高6米可分割两层,扩展使用面积。
4.全落地通体玻璃幕墙,采光好、高端大气。
5.超大门头,超大展示广告区,昭示性强。
6.门口预留较大区域,可生意外摆。
【招商雲蘭商铺】售楼处TEL:029-88866690【售楼中心】
了解最新优惠折扣价格——请拨打售楼处
声明:本文由入驻焦点开放平台的作者撰写,除焦点官方账号外,观点仅代表作者本人,不代表焦点立场。
