富力·开远城商铺(商铺百科)▁位置▁开盘时间▁租售中心▁城市综合体
扫描到手机,新闻随时看
扫一扫,用手机看文章
更加方便分享给朋友
西安「富力·开远城商铺」
租售中心:029-88866690(营销中心)
租售地址:029-88866690(致电发送详情地址)
如需了解最新房源信息_在售房源价格_请拨打上方售楼部电话!

百万商业金十字 建面约18-71㎡临街钻铺 限量发售二环城央 富力金街
【项目地址】莲湖区丰镐西路与团结南路十字向西50米
【开 发 商】西安坊城置业有限公司
【占地面积】约660亩
【建筑面积】逾300万㎡
【即将推售商铺】 1、住宅裙楼: DK1:1#、2#、9#楼一层;
【楼层层高】一层6m
【面积区间】约18-71㎡临街钻铺
富力·开远城
二环城央 高新门户 300万方城市综合体

富力·开远城位于二环主城核心板块,毗邻高新一期,规划逾300万方城市综合体,涵盖205万方高端住宅,105万方全维商业,未来将成为板块核心商业中心,以超级规划虹吸高新等板块近百万人流消费,汇聚16万+稳定客源,打造国际都会城芯的生活核心圈
核心价值二:人流量

金律四:全能配套 · 生活主场
跨越时代主场 辐射3KM约116万消费人潮
土门板块作为城西的重要核心片区,是曾经与康复路、小寨齐名的繁华商圈之一,一大批大中型企业相继在这里建立,区域内配套完善,人口密度集中,3km范围内约550个社区,辐射百万人流量

即将推售商铺落位示意(总平图)

DK1商铺资料

【面积】约18-71㎡
【开间】约3-7.5m
【进深】约4.2-12m
【层高】一层6m
【公摊】约4.1%
【业态】预留水、电、燃气、烟道、排污等各项设施,适配多元业态,灵活投用
【材质】真石漆外墙
【地块四至】北邻DK1双子塔公寓,南邻DK2社区,西侧为莲湖区卫生服务中心及安置小区,覆盖2万+常住居民,东侧对望DK4商业Shopping Mall、写字楼集群,吸附商业中心、高端办公区约10万多层级消费人群,超强的中心虹吸原理,未来庞大人流赋能,钱景无限
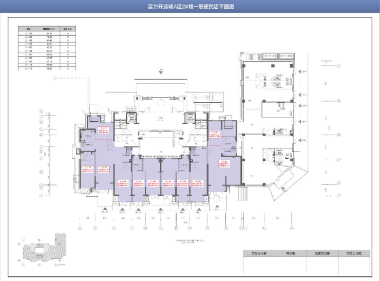
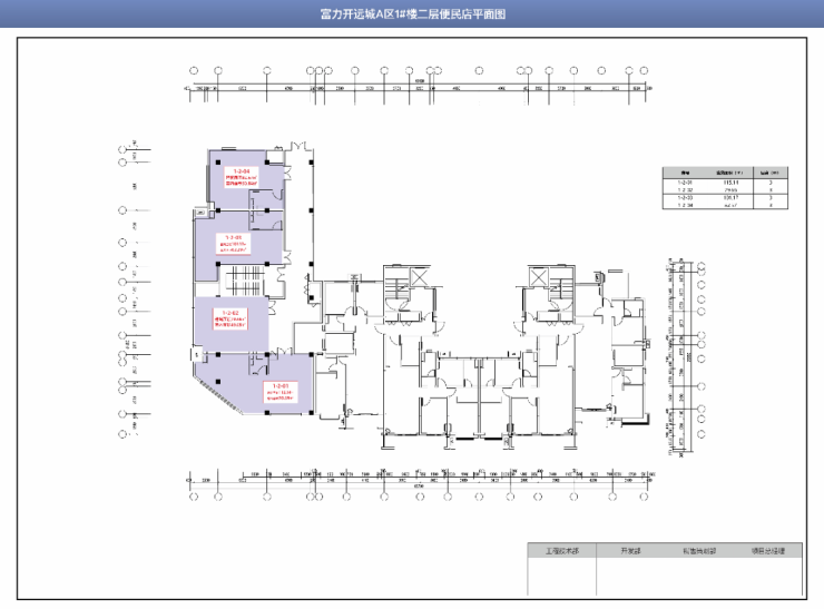
DK1#、2#、9#商铺平面图




百万商业金十字 百万人潮养一铺 二环城央 高新门户 建面约18-71㎡临街钻铺 富力·开远城项目商铺感谢您的关注 财富时光 一铺迎鉴
【富力·开远城商铺】租售中心TEL:029-88866690【售楼中心】了解最新优惠折扣价格——请拨打售楼处
声明:本文由入驻焦点开放平台的作者撰写,除焦点官方账号外,观点仅代表作者本人,不代表焦点立场。
