中铁建·西派天峯中心写字楼→开发商介绍→南北通透→卖点分析→精装
扫描到手机,新闻随时看
扫一扫,用手机看文章
更加方便分享给朋友
西安「中铁建·西派天峯中心写字楼」
租售中心:029-88866618(营销中心)
租售地址:029-88866618(致电发送详情地址)

项目名称:西派城TOD · 西派天峯中心
项目地址:大明宫-凤城二路与景云路交汇处十字西北角(地铁8/10号线井上村站A口)
项目规模:项目隶属中铁建·西派城TOD约500亩大城DK9地块,办公约24541.51㎡,238套。
项目层高:22层
产权年限:40年
交付标准:公区精装修 + 室内毛坯
在售面积:约85-1349㎡,TOD双地铁上盖,核心优质资产
八大核心价值归纳
1【双地铁上盖】地铁8/10号线出站即达,一站换乘3/4号线
2【3.8米层高】甲写标准,标准层高3.8米,3F层高4.2米
3【梁柱贴边】整层可打通,超高得房不浪费
4【空调自装】工作时长灵活,运营成本可控
5【方便停车】车位比约80㎡ : 1
6【独立上下水】室内预留上下水,会所、酒店、私厨功能灵活自定义
7【小面积分户】单户产证面积约85-128㎡,灵活组合、灵活融资、灵活变现
8【标杆物业】管理品质,实景可见(西派中心),楼宇价值有保障
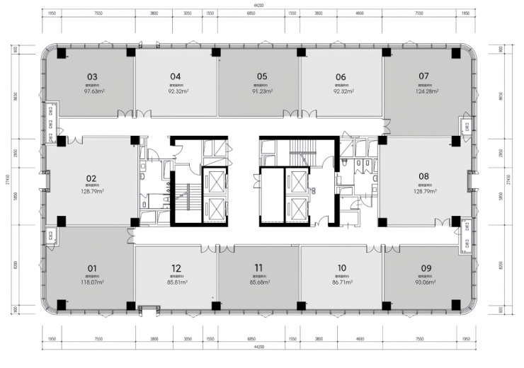
标准层平面示意

6大法则,迭新商务主场!
01品牌·超强兑现能力
开发企业的背景与实力,是购买商办产品的核心要素之一,作为更具兑现力的央企而言,毫无疑问是首选。
西派天峯中心由“世界企业500强、中国百强房企14名”中国铁建地产开发,在建筑设计、进度交付、效果呈现上更有保障。
中国铁建品牌实力一览:
◎世界500强第43位
◎中国企业500强第11位
◎全球250家最大承包商前3位
◎连续多年中国房地产产品品牌价值TOP10
◎全国12座城市48座西派作品
◎西安布局19子,16子皆是西派系

02定位·TOD旗舰级商务
纵观世界超一线城市,能够创造财富且经久不衰的商办项目,大都是基于“TOD开发模式”下的“城市结构空间”。通过“站、城、人一体化”,以大城化+大交通,打造集办公、商业、娱乐、居住等多功能于一体的综合性生态圈。
纵横商务时代,须有远见的格局。西派天峯中心,地铁10号线/8号环线,双线接驳地铁上盖,对标国内外TOD成熟项目(法国拉德芳斯、香港西九龙、北京京印国际中心、深圳深铁置业大厦),打造TOD综合商务旗舰,领衔商务社交格调未来!
作为鼎立大明宫之上的总部级TOD办公坐标,依托现象级500亩大城,通过轨交、商业与商办的融合互联,加速企业高效聚合链接,铸就全球活力总部中心。
——西派天峯中心平面图赏析——
◎地标美学符号:流线型玻璃立面+精装星级大堂塑造商务封面
◎空间效能革命:6部蒂升高速电梯+3.8米层高+室内空间梁柱贴边
◎科技系统护航:24小时新风+人脸识别道闸+智能楼宇系统
◎人性细节标配:空调自装+单户独立上下水+单层独立男女分区公卫
——商办资产配置指南——
西派天峯中心可提供小面积到整层,以及多层、整栋的多元化空间定制,按需选择灵活投资。

【中铁建·西派天峯中心写字楼】售楼处TEL:029-88866618【售楼中心】
了解最新优惠折扣价格——请拨打售楼处
声明:本文由入驻焦点开放平台的作者撰写,除焦点官方账号外,观点仅代表作者本人,不代表焦点立场。
