盈樾国际写字楼【西安写字楼】→高新区→开发商推广销售→租金→楼位图
搜狐焦点安康站 2025-11-21 17:42:00
用手机看
扫描到手机,新闻随时看
扫一扫,用手机看文章
更加方便分享给朋友
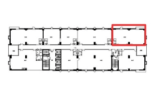
西安盈樾国际写字楼租售中心提供180㎡南向户型,含税租金65元/㎡/月,精装修带家具,交通便利,车位充足,现房交付。
西安「盈樾国际写字楼」
租售中心:029-88866618(营销中心)
租售地址:029-88866618(致电发送详情地址)
在售户型图丨项目详情介绍丨剩余房源丨项目周边配套丨详细在线解答

【项目位置】 高新区锦业路与丈八三路十字西南角
【租赁面积】180㎡
【朝向及格局】南向2+1格局 工位14人
【租金】含税65元/㎡/月
【物业费】 10.13元/㎡/月
【电费】 0.75元/度/月
【户型优势】 南向采光
【交付状态】 精装修带家具
【交 通】 地铁六号线-丈八四路C口出步行3分钟,多条公交线路
【车位】 地下负一层至地面,共计1200个
【停车费】 650元/月,临停3元/小时
【空调】日立VRV自控
【租赁年限】 押二付六/押二付年,两年起签
【交付时间】现房
项目大堂

公共配套区
共享茶室

共享会议室

平面位置图


【盈樾国际写字楼】租售中心TEL:029-88866618【售楼中心】了解最新优惠折扣价格——请拨打售楼处
声明:本文由入驻焦点开放平台的作者撰写,除焦点官方账号外,观点仅代表作者本人,不代表焦点立场。
