中铁建·西派天峯中心写字楼→开发商介绍→双地铁→卖点分析→精装
扫描到手机,新闻随时看
扫一扫,用手机看文章
更加方便分享给朋友
西安「中铁建·西派天峯中心写字楼」
租售中心:029-88866618(营销中心)
租售地址:029-88866618(致电发送详情地址)
在售户型图丨项目详情介绍丨剩余房源丨项目周边配套丨详细在线解答

项目名称:西派城TOD · 西派天峯中心
项目地址:大明宫-凤城二路与景云路交汇处十字西北角(地铁8/10号线井上村站A口)
项目规模:项目隶属中铁建·西派城TOD约500亩大城DK9地块,办公约24541.51㎡,238套。
项目层高:22层
产权年限:40年
交付标准:公区精装修 + 室内毛坯
在售面积:约85-1349㎡,TOD双地铁上盖,核心优质资产
八大核心价值归纳
1【双地铁上盖】地铁8/10号线出站即达,一站换乘3/4号线
2【3.8米层高】甲写标准,标准层高3.8米,3F层高4.2米
3【梁柱贴边】整层可打通,超高得房不浪费
4【空调自装】工作时长灵活,运营成本可控
5【方便停车】车位比约80㎡ : 1
6【独立上下水】室内预留上下水,会所、酒店、私厨功能灵活自定义
7【小面积分户】单户产证面积约85-128㎡,灵活组合、灵活融资、灵活变现
8【标杆物业】管理品质,实景可见(西派中心),楼宇价值有保障
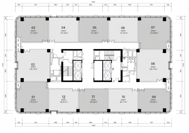
标准层平面示意

6大法则,迭新商务主场!
01品牌·超强兑现能力
开发企业的背景与实力,是购买商办产品的核心要素之一,作为更具兑现力的央企而言,毫无疑问是首选。
西派天峯中心由“世界企业500强、中国百强房企14名”中国铁建地产开发,在建筑设计、进度交付、效果呈现上更有保障。
中国铁建品牌实力一览:
◎世界500强第43位
◎中国企业500强第11位
◎全球250家最大承包商前3位
◎连续多年中国房地产产品品牌价值TOP10
◎全国12座城市48座西派作品
◎西安布局19子,16子皆是西派系

02定位·TOD旗舰级商务
纵观世界超一线城市,能够创造财富且经久不衰的商办项目,大都是基于“TOD开发模式”下的“城市结构空间”。通过“站、城、人一体化”,以大城化+大交通,打造集办公、商业、娱乐、居住等多功能于一体的综合性生态圈。
纵横商务时代,须有远见的格局。西派天峯中心,地铁10号线/8号环线,双线接驳地铁上盖,对标国内外TOD成熟项目(法国拉德芳斯、香港西九龙、北京京印国际中心、深圳深铁置业大厦),打造TOD综合商务旗舰,领衔商务社交格调未来!
作为鼎立大明宫之上的总部级TOD办公坐标,依托现象级500亩大城,通过轨交、商业与商办的融合互联,加速企业高效聚合链接,铸就全球活力总部中心。
——西派天峯中心平面图赏析——
◎地标美学符号:流线型玻璃立面+精装星级大堂塑造商务封面
◎空间效能革命:6部蒂升高速电梯+3.8米层高+室内空间梁柱贴边
◎科技系统护航:24小时新风+人脸识别道闸+智能楼宇系统
◎人性细节标配:空调自装+单户独立上下水+单层独立男女分区公卫
——商办资产配置指南——
西派天峯中心可提供小面积到整层,以及多层、整栋的多元化空间定制,按需选择灵活投资。

【中铁建·西派天峯中心写字楼】售楼处TEL:029-88866618【售楼中心】
了解最新优惠折扣价格——请拨打售楼处
声明:本文由入驻焦点开放平台的作者撰写,除焦点官方账号外,观点仅代表作者本人,不代表焦点立场。
