2025西安普汇中金国际中心|开发商介绍|周边设施|楼盘介绍-周边配套

搜狐焦点安康站 2025-09-21 14:12:00
用手机看
扫描到手机,新闻随时看

扫一扫,用手机看文章
更加方便分享给朋友

西安普汇中金国际中心写字楼提供329㎡精装房源,配备高端设施与共享商务配套,租金及服务优惠吸引企业入驻。

西安「普汇中金国际中心写字楼」

租售中心:029-88866618(营销中心)

租售地址:029-88866618(致电发送详情地址)

普汇中金国际中心 329㎡ 69元

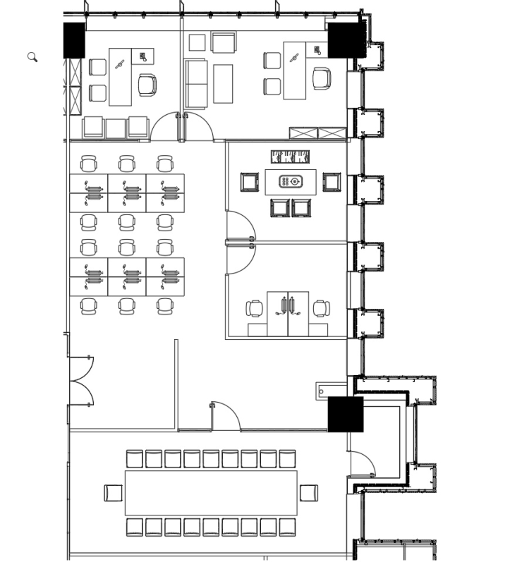
【 1403房 329平 5+1格局】 精装全配

位置:经开区文景路与凤城十路十字西北角

【PART01:房源信息】

物业费:22元(空调早8点-晚8点)

朝向:东北向

格局:5➕1

【PART02:楼宇信息】楼层:总高25层,地下两层,双银LOW-E中空玻璃幕墙,山水立面造型,区域商务地标

大堂:双层10米挑高大堂,高奢级艺术装修

电梯:7部芬兰通力高速电梯(六部客梯、一部货梯),面部识别+智能派梯系统

停车费:550元每月含管理费、临停3元/小时,电车充电桩+非机动车专用车位

【PART04:昇昱服务式办公共享商务配套】

关于昇昱服务式办公 昇昱服务式办公是昇昱写字楼运营服务集团旗下的服务式办公品牌。 以多种类型办公物业为标的,秉承低碳、人文的发展理念,不断深研企业客户的需求,提供多场景成品独立空间,满足企业私密性办公需求,打造昇超级企业服务前台、茶室、会议空间、红酒坊、总裁会客厅、直播室等共享商务配套,将企业低频配套空间,以共享形式节省企业成本。让办公、社交场景有机相融。专属楼宇管家,服务式运维,扩展企业发展生态链、资源圈,实现企业轻松进驻、舒心办公。

普汇中金国际中心项目共享配套实景展示:

休闲洽谈区(日常会客/休憩/社群活动)

中型会议室(可容纳10-15人,智能显示屏)

【PART05:房源实景】

【普汇中金国际中心写字楼】租售中心TEL:029-88866618【售楼中心】了解最新优惠折扣价格——请拨打售楼处

声明:本文由入驻焦点开放平台的作者撰写,除焦点官方账号外,观点仅代表作者本人,不代表焦点立场。